Tak trochu více jiný Kubis

Podívejte se na zdařilou realizaci domu dle individuálního návrhu.

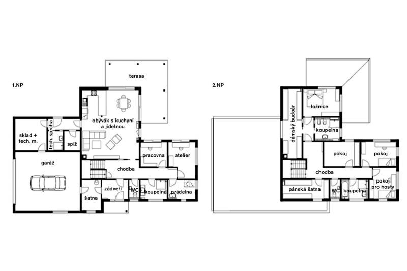
Zastavěná plocha: 221,60 m2
Užitná plocha: 244,94 m2