Kubis 99
Moderní rodinný dům o dispozicích 4 + kk s možností jednoduchého rozšíření na 5 + kk, nebo o plnohodnotnou garáž. KUBIS 99 obsahuje v ceně i základovou desku.
Dodávka vybavení na klíč obsahuje:
- tepelné čerpadlo vzduch/vzduch s možností vytápění nebo chlazení interiérovými splitovými klimatizačními jednotkami
- elektrické nástěnné přímotopné panely bez centrální regulace
- fotovoltaický jednofázový on GRID systém s akumulací do zásobníku TUV
- dispozice 4 + kk s možností jednoduché úpravy na 5 + kk
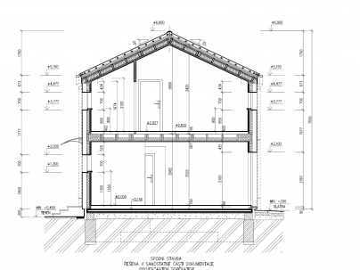
- sedlová střecha se sklonem 25°
- v ceně domu pergola garážového stání, základová deska a doprava
- celková zastavěná plocha domu je 62,99 m²
- rozměry domu 9,24 x 6,81 m
- obvodové stěny s vnitřní izolací 120 + 40 mm a vnější termofasádou 150 mm uzavřenou strukturní barevnou omítkou
- betonová střešní krytina včetně anténní tašky
- vnější dřevěné díly natřené lazurovou barvou dle vzorníku
- okapy z titanozinku
- venkovní nezámrzný zahradní ventil
- schodiště mezi přízemím a obytným podkrovím v provedení buková spárovka
- laminátová podlaha nebo koberec v obytných místnostech a na chodbě v podkroví, v ostatních místnostech dlažba
- obklady v koupelně a na WC do výše dveří
- elektroinstalace od skříně domovního rozvaděče včetně dodávky domovního rozvaděče, v místnostech jsou zabudovány zásuvky a vypínače bílé barvy
- ventilátor s hygrostatem v místnostech s vanou nebo sprchou
- instalace slaboproudu - zvonek od domovních dveří, 2 zásuvky pro kabelové připojení TV včetně kabelového rozvodu v domě
- sanitární vybavení - umyvadlo ze sanitární keramiky v bílé barvě se směšovací pákovou baterií, umývátko ze sanitární keramiky v bílé barvě se směšovací pákovou baterií, vana s pákovou baterií a se sprchovou hadicí a růžicí, sprchový kout včetně baterie se sprchovou hadicí a růžicí a kombinované WC
- přípojka pro pračku
- přípojka pro myčku
- ohřev teplé vody pomoci zásobníku 200 l
- malířské práce - stěny a stropy upraveny zednickou stěrkou stupně kvality povrchu Q2, bílá malba
- kuchyňské přípojky vody, odpady a elektro v rozsahu dle typové obchodní dokumentace
- rozvody vody potrubí Alpex, kanalizace z plastových trubek
- požární bezpečnost - zařízení autonomní detekce a signalizace
- okna a terasové dveře vyrobené z 6-ti komorových PVC profilů v bílé barvě s izolačním trojsklem, součinitel prostupu tepla celého okna Uw ≤ 1,0 W/(m².K)
- vnitřní laminové dveře KASARD v provedení plné s obložkovou zárubní a protihlukovým průběžným gumovým těsněním
- dveřní kování dvoudílné rozetové
- vchodové domovní dveře v provedení masiv nebo z 5-ti komorových PVC profilů v bílé barvě se třemi závěsy a pětinásobným uzávěrem
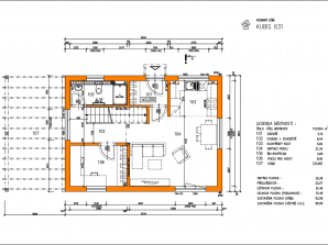
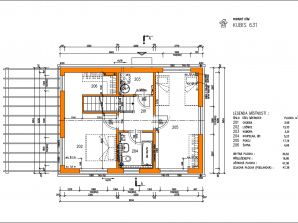
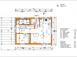
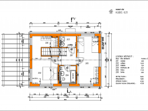
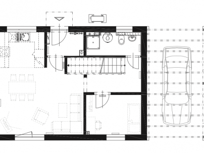
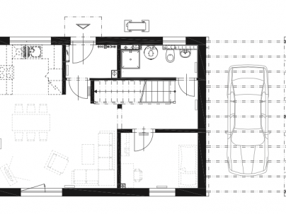
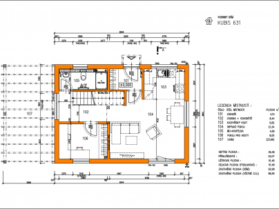
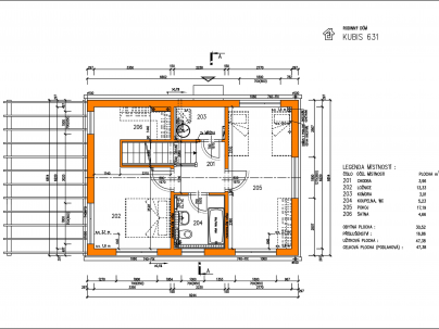
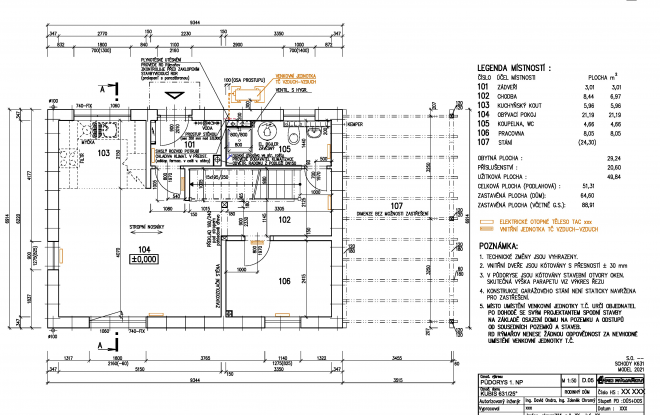
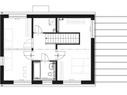
| Přízemí | Patro | Celkem |
| Zádvěří 3,10 m2 | Chodba 8,35 m2 a schodiště | Obytná plocha 59,72 m2 |
| Koupelna, WC 4,69 m2 | Koupelna, wc 4,21 m2 | Příslušenství 37,54 m2 |
| Kuchyň 5,82 m2 | Dětský pokoj 17,19 m2 | Užitková plocha 97,26 m2 |
| Obývací pokoj 21,34 m2 | Šatna 4,75 m2 | Zastavěná plocha 64,609 m2 |
| Pokoj pro hosty 7,78 m2 | Ložnice 13,07 m2 | Garážové stání 24,30 m2 |
| Chodba, schodiště 8,44 m2 | Komora 3,20 m2 | Rozměry domu 9,34 x 6,91 m |
| Garážové stání 23,96 m2 | Sklon střechy 25° |
Fotografie Kubis 99+1M
Tento dům je zvětšovaný o jeden modul (60cm šířky - asi 7,5m2 plochy domu navíc), kuchyň má přesunutou do prostoru pracovny, kde byla zrušena příčka do chodby. Pod schodištěm je komora. Zádveří domu je zvětšené o 70cm. Spodní koupelna je s velkým sprchovým koutem, bojler je přesunutý do komory v patře, pračka je zabudovaná v kuchyňské lince. V patře je rozdělený dětský pokoj na dva samostatné pokoje, jsou zde přidávaná okna šířky 90cm na štítovou stěnu. V ložnici je nad schodištěm prostor na vestavnou skříň, prozatím bez polic a dveří. V koupelně v patře je vana přesunuta pod okno. U domu je místo pergoly garáž standardní velikosti.
Kubis 99
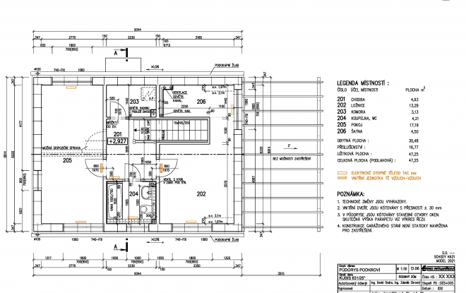
Tento dům není zvětšovaný, s přidaným fixním oknem v obývacím pokoji, horní pokoj je rozdělený na dva dětské pokoje s přidanými okny ve štítě. Koupelna v patře má zkosenou příčku (varianta koupelny číslo 3), v ložnici je vestavná skříň nad schodištěm a prakticky řešená otevřená šatna.
U tohoto domu byla zrušena pergola garážového stání a místo původních velkých terasových dveří je dvoukřídlé okno, výstup na terasu je na štítové straně. Ve spodní koupelně je instalována velká sprcha v provedení bez vaničky, bojler a pračka se sušičkou jsou přesunuty do horní komory. V horní koupelně je vana osazená pod okno, koupelna je zvětšovaná.

























































































































































































































