Klasik 125
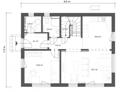
Moderní dispozice tohoto domu nabízí vaší rodině 5 pokojů, obývací pokoj oddělený od kuchyně a dostatečně velké pokoje v podkroví. Pátý pokoj v přízemí může být nejen pokojem pro hosty, pracovnou, ale díky své dostatečné velikosti i plnohodnotnou ložnicí pro rodiče. Dům je svým designem a klasickým tvarem vhodný do každé zástavby.
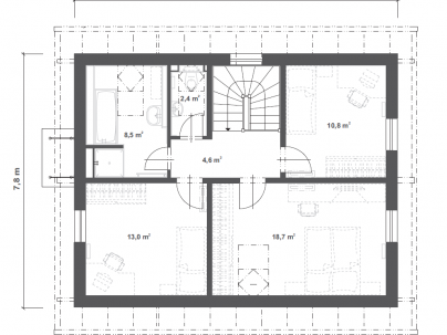
Díky zvýšené obvodové stěně v patře na 1,3 metru nabízí tento dům dostatek prostoru i v podkroví.
| Provedení domu | 5+1 | 
| Užitná plocha | 125 m2 | 
| Zastavěná plocha | 78 m2 | 
| Rozměry domu | 7.8 x 9.9 m | 
 
		                     
                                     
                                     
                                     
                                     
                                     
                                     
                                     
                                     
                                     
                                     
                                    
 
                 
        